UNIQUE HERITAGE CONTEMPORARY FINESSE

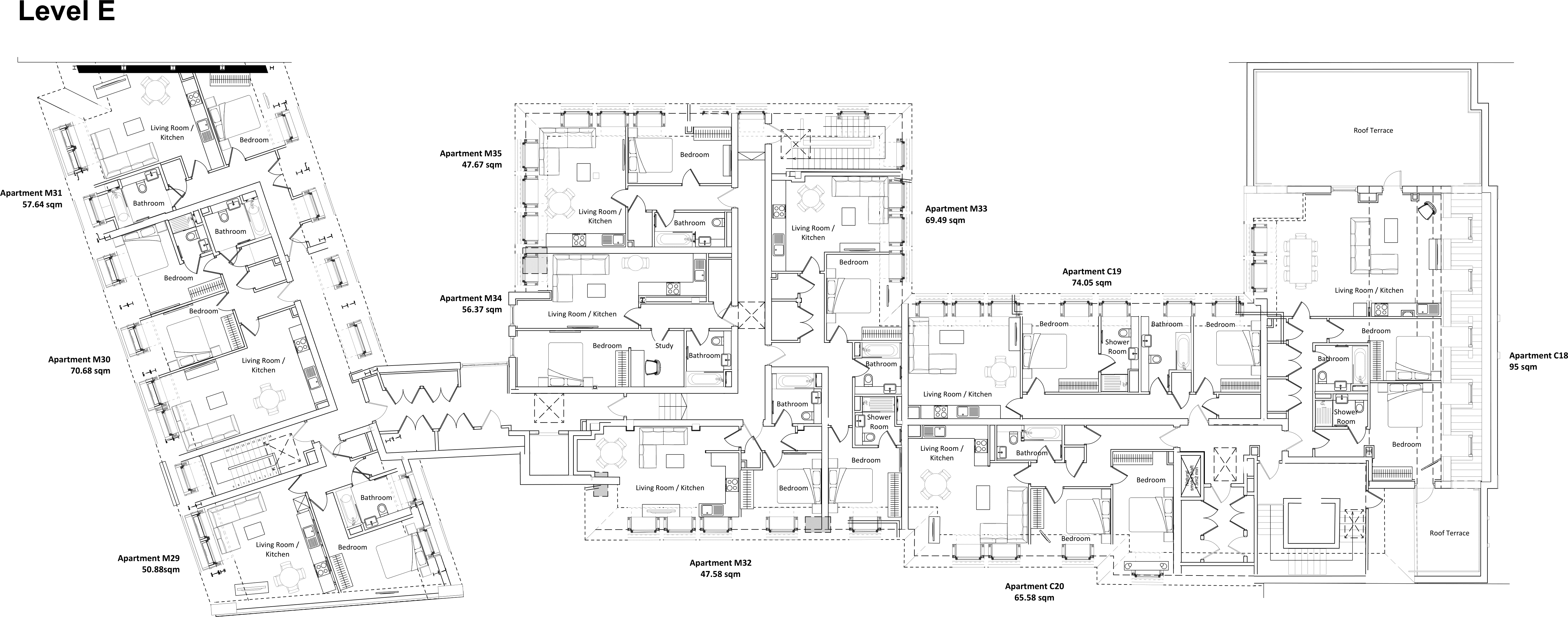
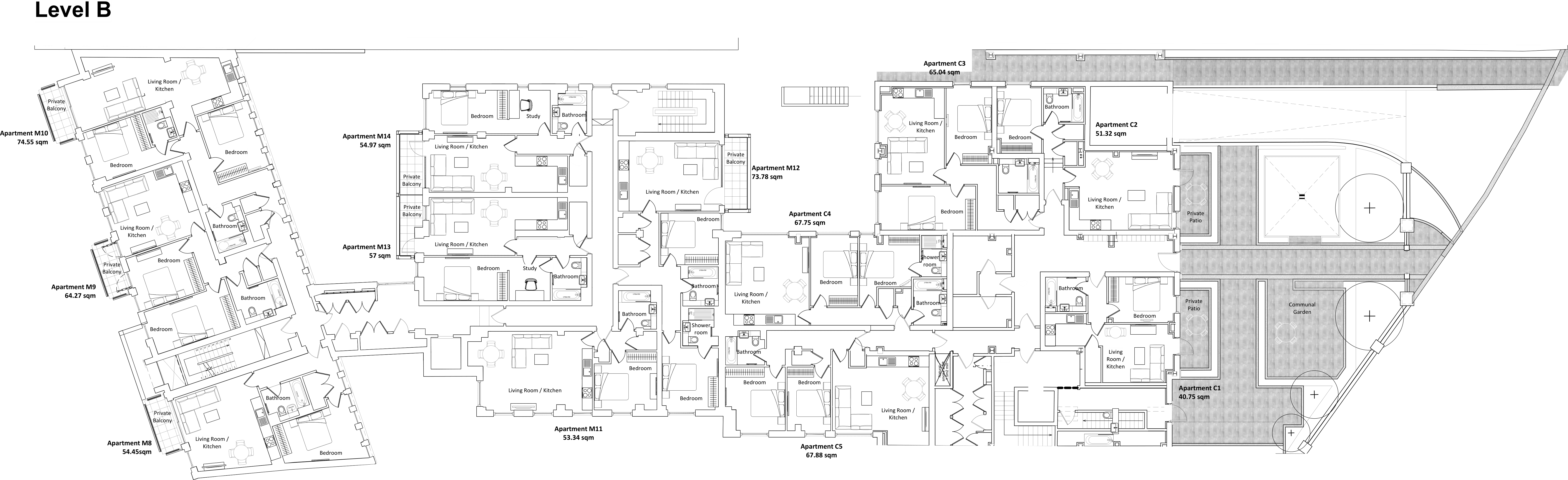
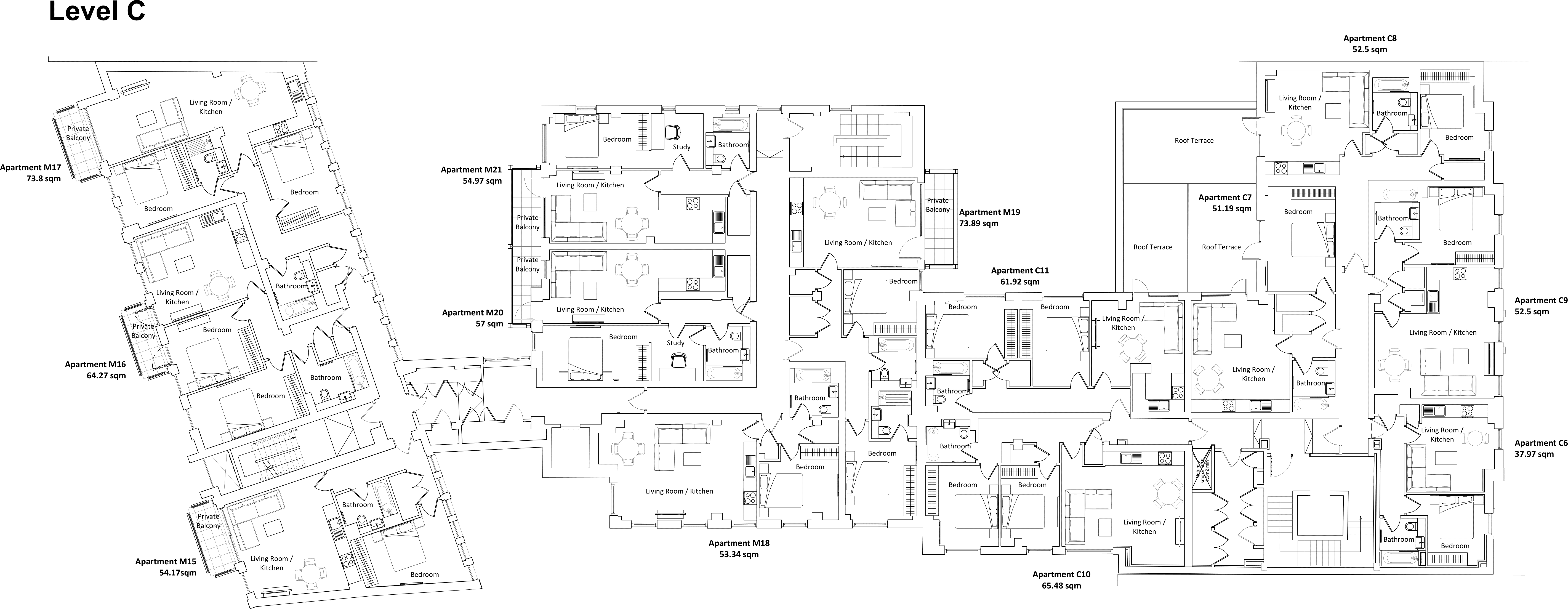
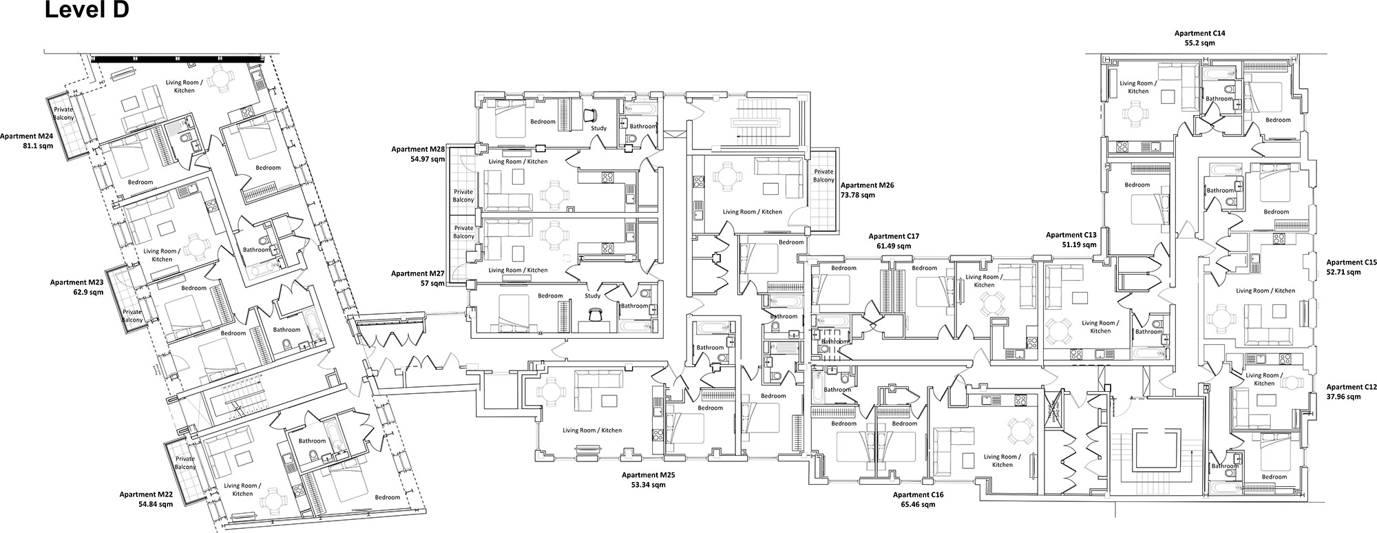
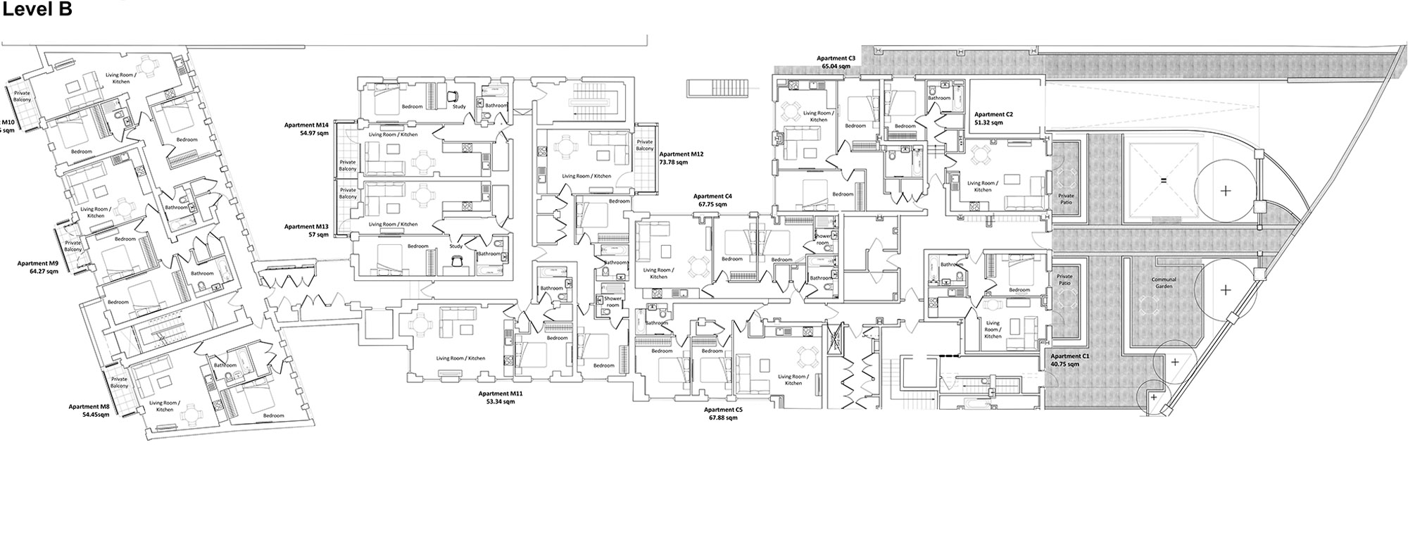
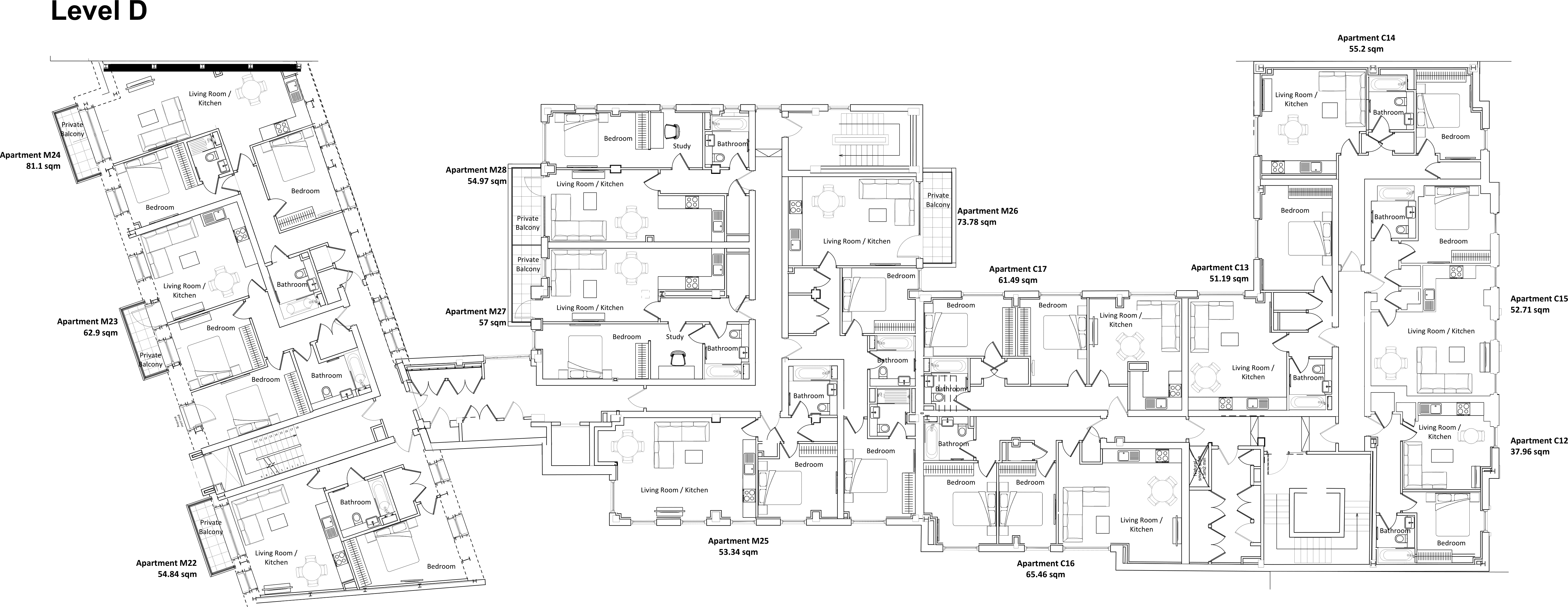
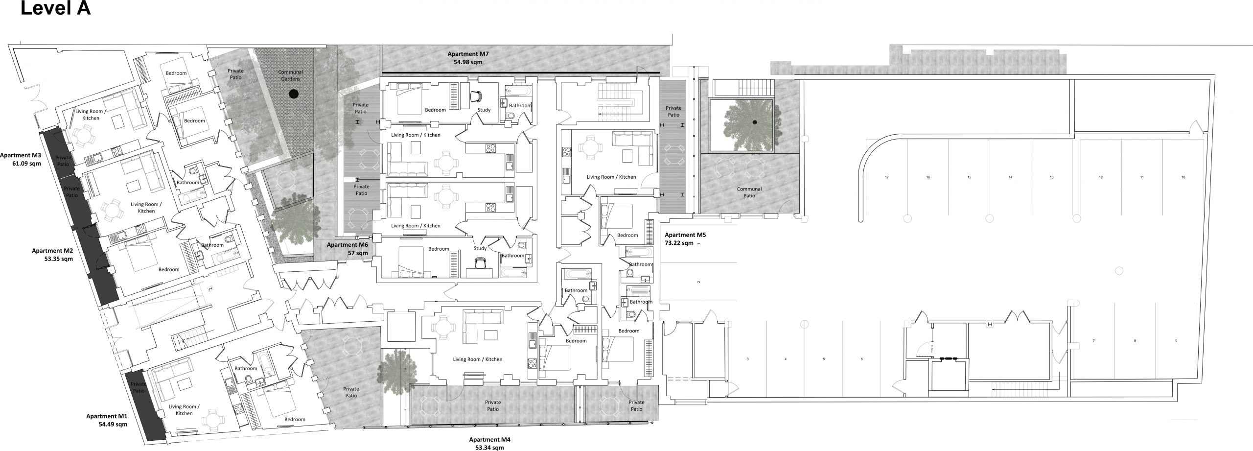
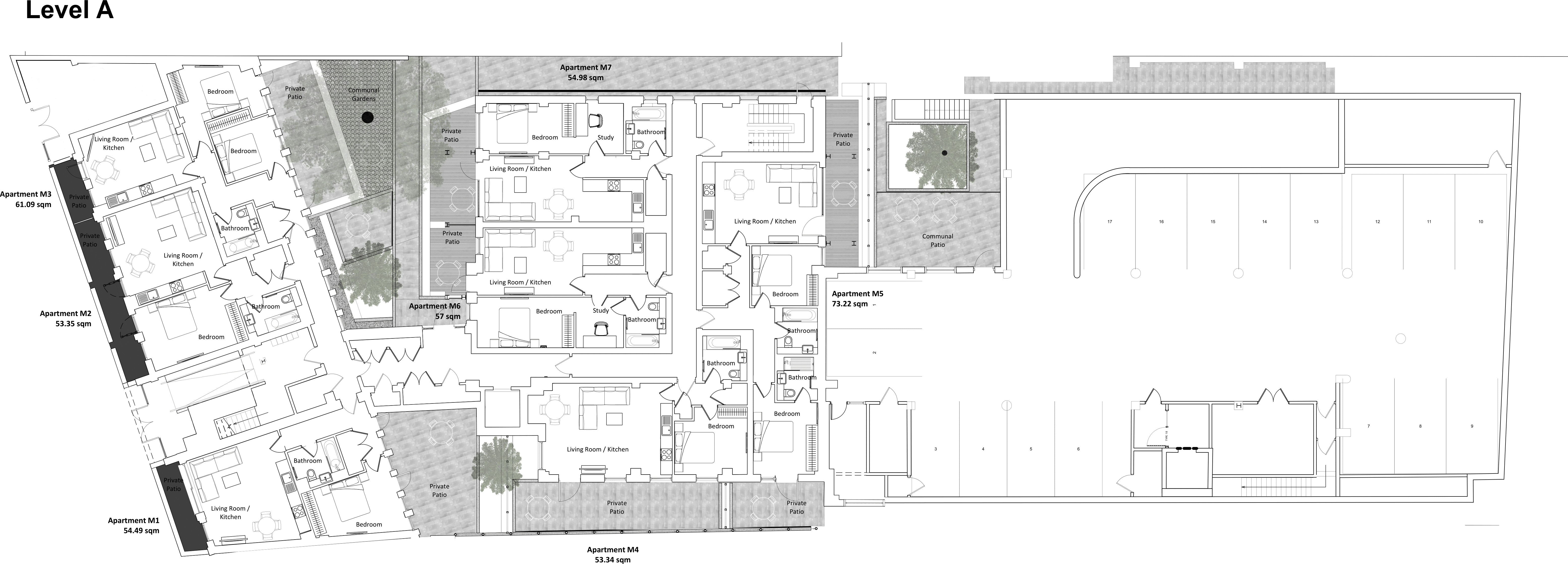
The Soane is set back from the road in a peaceful location, in the heart of St Helier. Enter The Soane through an impressive gated entrance and enjoy the elegant communal gardens which join both the La Motte Street and La Colomberie. The development of contemporary one, two and three bedroom apartments is just a few seconds walk from the main shopping street; a prime location for all the amenities of town. Set over five floors, each of the 55 apartments have been individually designed to a high specification with unique features and generous natural light flowing throughout. These sought-after residences are perfect for first time buyers or investment opportunity.

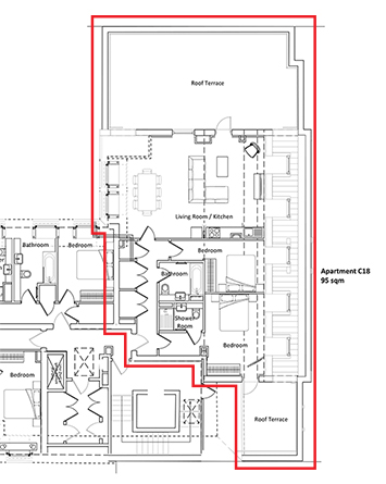
The Penthouse plan below shows a 2 bedroom layout, however it is also available to be converted into a 3 bedroom property. Contact our team for more details.
01534 888850 | enquiries@palladiumgroup.co.uk